Ce lot n’est plus disponible chez VIANOVA ou est vendu.
Vous pouvez revenir dans 24h pour vérifier le stock à jour ou contacter un conseiller Vianova pour vérifier le stock en direct.
Vous pouvez également continuer votre recherche sur notre site « ici ».
1 547 999€
Appt. au 1er
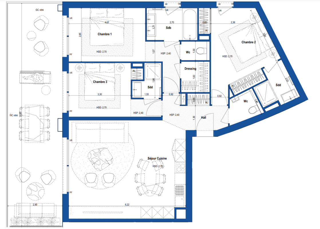
T4
95 m²
Sud-Ouest
Villeneuve-Loubet (06270)
4ème trimestre 2029
01 81 80 39 10
Présentation du programme "Carat"
Villeneuve Loubet Plage : découvrez une résidence neuve de prestige en bord de mer méditerranée, les pieds dans le sable. Carat est bien plus qu'un programme immobilier neuf sur la Côte d'Azur : c'est une expérience de vie exclusive, directement sur le littoral, face à la mer ! Située à Villeneuve-Loubet, entre Nice et Cannes, Carat propose des appartements d'exception du 2 au 5 pièces, tous prolongés par de grandes terrasses, avec pour la majorité une vue imprenable sur la mer Méditerranée.
Pensée pour une clientèle exigeante, Carat offre des prestations rares et luxueuses : une piscine sur le toit avec vue panoramique sur la mer, une conciergerie privée et un accès direct à la plage.
Encore confidentielle, Villeneuve-Loubet séduit par son cadre de vie exceptionnel, entre mer, nature. À 15 minutes de l'aéroport de Nice, cette commune offre une accessibilité idéale tout en préservant son authenticité. À proximité immédiate, profitez d'activités variées : sports nautiques, tennis, padel, équitation, golf et balades dans le Parc naturel des Rives du Loup. À quelques minutes à pied, Marina Baie des Anges, port emblématique de la Côte d'Azur, accueille des bateaux jusqu'à 30 mètres.
Carat, une résidence rare, pour une clientèle en quête d'un immobilier unique sur la plage.
Autres logements T4 du programme "Carat"
| Disponibilité | Prix | No | Genre | Pièces | Surface | Étage | Disponibilité | Prix | ||
|---|---|---|---|---|---|---|---|---|---|---|
| Voir | Archivé | 1 427 999€ | 1104 | Appt. | T4 | 102m2 | 1er | Archivé | 1 427 999€ | Voir |
| Voir | Archivé | 1 636 000€ | 1004 | Appt. | T4 | 110m2 | 0-RDC | Archivé | 1 636 000€ | Voir |
| Voir | Archivé | 1 799 999€ | 1105 | Appt. | T4 | 110m2 | 1er | Archivé | 1 799 999€ | Voir |
| Voir | Archivé | 1 990 000€ | 1106 | Appt. | T4 | 122m2 | 1er | Archivé | 1 990 000€ | Voir |
| Voir | Archivé | 2 099 999€ | 1206 | Appt. | T4 | 122m2 | 2ème | Archivé | 2 099 999€ | Voir |
| Voir | Archivé | 1 799 999€ | 1005 | Appt. | T4 | 122m2 | 0-RDC | Archivé | 1 799 999€ | Voir |
| Voir | Archivé | 1 285 000€ | 1003 | Appt. | T4 | 102m2 | 0-RDC | Archivé | 1 285 000€ | Voir |