Prix
181 422€  (TVA 20%)
159 500€  (TVA 5.5%)
Type
Appt. au 4ème
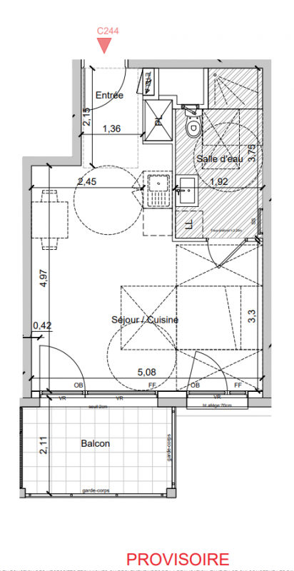
Pièces
Studio
Surface
32.34 m²
Exposition
Sud
Ville
Strasbourg (67000)
Livraison
4ème trimestre 2028
Informations
01 81 80 39 10

Présentation du programme "COOP Garten"

AVANT-PREMIÈRE ! A Strasbourg, vivez l'esprit Coop ! Votre futur appartement éco-responsable à TVA réduite 5,5 %* dans le quartier iconique qui réinvente Strasbourg !Bienvenue à COOP Garten, la nouvelle adresse urbaine de référence de Strasbourg. Un lieu créatif, connecté à l’Europe grâce au tram transfrontalier, au cœur du quartier Coop.Ici, on habite autrement : un quartier hybride, où logements, ateliers, bureaux, culture et loisirs se croisent et s’enrichissent. Un lieu de vie ouvert, rythmé par l’art, la mobilité et la proximité immédiate du centre-ville.Ici, choisissez votre futur appartement, du studio au 5 pièces, prolongé par des balcons ou loggias aux vues dégagées et laissant circuler la lumière.Au cœur de la résidence, de généreux espaces paysagers forment un véritable îlot de fraîcheur, avec une végétation abondante et des aménagements extérieurs conçus pour favoriser la convivialité et créer de vrais lieux de vie partagés.Et pour vos économies d’énergie, COOP Garten adopte une architecture bioclimatique répondant aux exigences de haute performance énergétique RE2020 seuil 2025, pour un confort durable et une empreinte carbone allégée.*TVA à taux réduit à 5.5% applicable dans le cadre d'une acquisition exclusivement en résidence principale, soumis à des conditions d'éligibilité et de ressources. Prix communiqués en TVA réduite à 5.5% stationnement inclus (selon lot)

Autres logements Studio du programme "COOP Garten"

Disponibilité Prix Genre Pièces Surface Étage
Voir
Disponible
175 735€ Appt. Studio 32.34m2 1er
Voir
Disponible
178 578€ Appt. Studio 32.34m2 2ème
Voir
Disponible
181 308€ Appt. Studio 32.34m2 3ème
DO NOT CLICK